Property information
High Holborn,
Holborn,
WC1V
£3,250,000
Leasehold: APPROX 981 YEARS REMAINING
Service Charge: £5,500
EPC RATING: E
Council Tax : band G
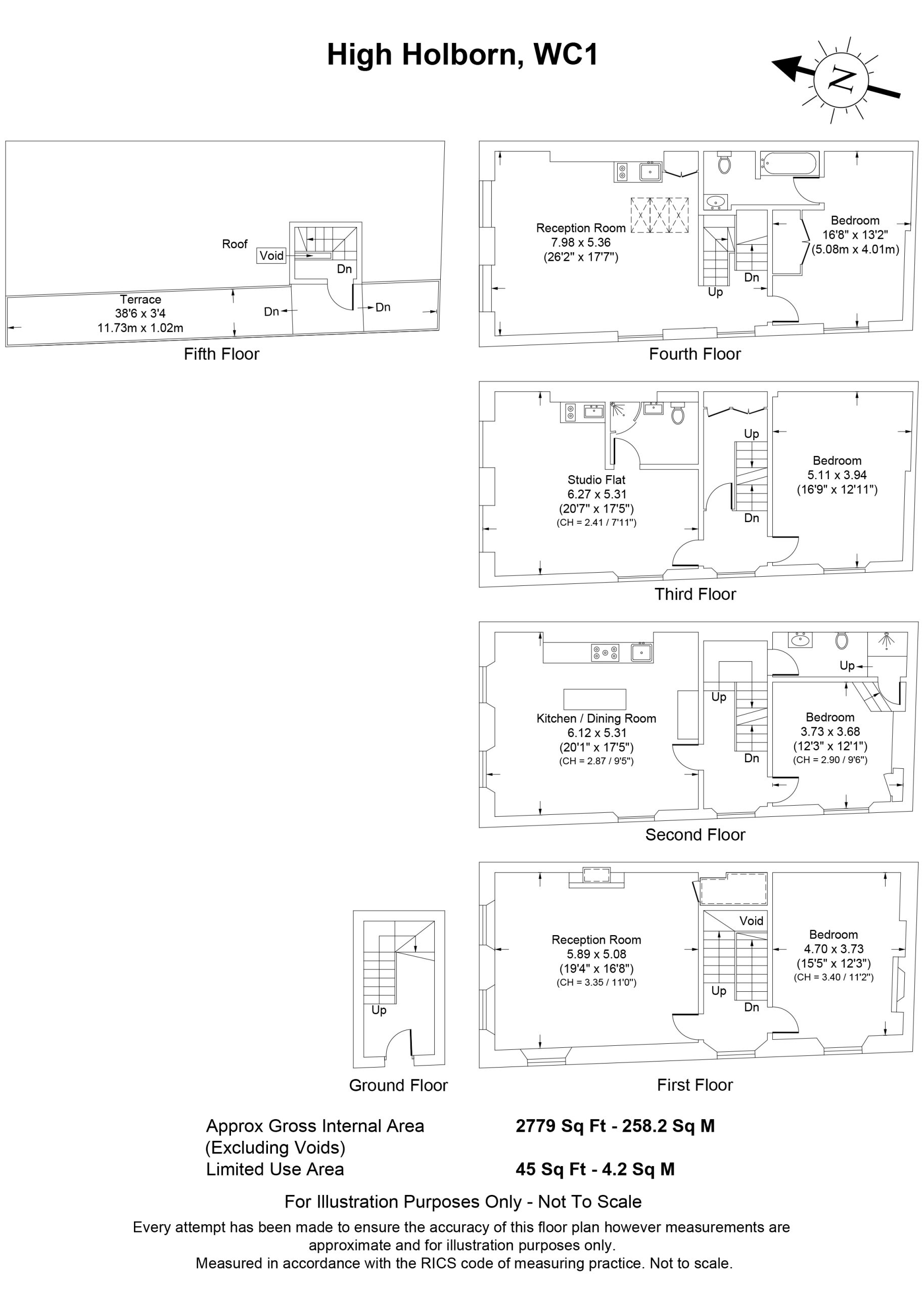
- 5 Bedrooms
- 3 Bathrooms
- Bloomsbury Conservation Area
- Grade II listed
- Eat in kitchen
- Sash windows
- Period features
- Vaulted ceilings
- Roof access
- Close to Holborn underground station
Story of the Home
Built by George Webb, co-founder of Mappin & Webb, Newton House is a property with heritage and soul, from its vaulted top floor to its rooftop views.
At the meeting point of High Holborn and Newton Street in the Bloomsbury Conservation area stands Newton House, a building with a remarkable past and an equally captivating present.
Grade II listed and dating from the early 19th century, the property was designed and built by George Webb co-founder of renowned jewellers Mappin & Webb, whose reputation for quality and craftsmanship is reflected in the building’s enduring presence. Over time, it has also housed antiques dealers, and independent traders, each adding to its layered story, and today it offers a rare opportunity to own a home rich in heritage and character.
Inside, the accommodation has been thoughtfully adapted for modern living while retaining the atmosphere of its historic fabric. On the first floor, a dual-aspect living room with high ceilings and tall sash windows creates a grand yet welcoming setting, complemented by a versatile office or fifth bedroom. The second floor is centred around a large eat-in kitchen, the natural heart of the home, together with a comfortable bedroom and en-suite.
The third floor introduces a flexible arrangement: a self-contained studio with kitchenette and en- suite, plus a further bedroom, perfect for guests.
The fourth floor reveals the building’s character at its most dramatic: a loft-style open plan space with vaulted ceilings, exposed beams, a kitchenette, bedroom and bathroom. From here, a staircase leads to the roof space, a rare vantage point above Holborn’s rooftops.
Beyond the walls, the setting is as compelling as the home itself.
The Bloomsbury Conservation Area is among London’s most historically and architecturally significant districts, first designated in 1968 as one of Camden’s earliest conservation areas. At its southern edge, High Holborn stands as one of the capital’s oldest thoroughfares, connecting Bloomsbury with the vibrant heart of Covent Garden.
Today the area is alive with creative and professional energy: the Inns of Court, Lamb’s Conduit Street cafés and shops, West End theatres, and cultural landmarks such as the British Museum and Somerset House are all within walking distance. With Holborn Underground just moments away, the whole city is on your doorstep.
Newton House, High Holborn, is a beautiful home that unites history, craftsmanship, and versatility, a place where Mappin & Webb’s legacy meets a modern way of living.
"Built by George Webb, co-founder of Mappin & Webb, Newton House is a property with heritage and soul, from its vaulted top floor to its rooftop views"
